Riveting Rooms | Master Bath Edition

Riveting Rooms | Master Bath Edition

  • Jen Angotti
  • 04/14/15
 
As you can imagine, the news that a Whole Foods is being built across the street has made me very, very happy. It also means we’re never leaving the condo. For years, I’ve thought we’d sell eventually and move into a house. Now I’m content to stay indefinitely.
 
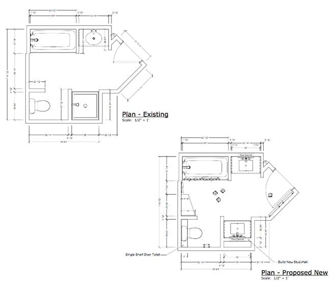
Which means I can renovate the bathrooms! Before the the Whole Foods news, I was reluctant to invest anymore money into the condo. Now that we’re staying, it’s on. This is not happening anytime soon but I’m having a ton of fun thinking about it.
 
First up, the master bathroom. I am 100% copying this fantastic master bathroom that was designed by Emily Henderson. I’ll use brushed silver hardware vs. oiled bronzed but that’s the only change I’d make. Isn’t that tile divine?
 
 

Work With Jen

Jen Angotti excels at helping buyers and sellers achieve their real estate dreams. She offers concise, realistic advice on how to navigate any real estate transaction. Her clients appreciate her attention to detail, willingness to answer questions and patience.

Follow Me on Instagram